项目概述
交通配套
轨道交通:项目直线距离地铁12号线七莘路站约900米,通过12号线可直达漕河泾、徐汇滨江、苏河湾、北外滩、杨浦滨江、森兰、金桥等地。嘉闵线(在建)预计2027年通车,建成后将实现与机场联络线的互联互通,显著提升嘉定新城、虹桥国际中央商务区、闵行主城片区等地区的可达性与辐射范围。
自驾交通:周边有“亚洲第一立交桥”莘庄立交、沪闵高架、嘉闵高架等多条快速路,可便捷通达市区各重要节点。
生活配套
大型购物中心:直线距离12号线七莘路站地铁上盖综合体维璟印象城仅约600米,此外,周边还有todtown天荟、仲盛世界商城、平金中心、凯德龙之梦等大型购物中心,满足日常购物、餐饮、娱乐等需求。
高端商业环伺:项目附近还有七宝万科广场、宝龙城、中庚漫游城、百联南方购物中心等高端商业,为居民提供了丰富的消费选择。
教育配套
幼儿园:项目北侧约1公里是政府规划幼儿园,民办则有莘松晓苗幼儿园和启英幼儿园。
小学:七宝外国语小学距离项目仅约2.6km,是上海top1的私立小学。
中学:初中有闵行王牌之称的莘松中学,目前联合莘城学校、明星学校、康城学校、师培附中、君莲学校、马桥万科实验中学等6所学校成立了莘松中学教育集团。
医疗配套
综合医院:项目直线距离闵行中心医院仅约2.5km,是片区唯一一家大型综合性医院。
专科医院:周边5公里范围内还有儿科三甲类医院复旦大学儿科医院和脑科专科三甲医院蓝十字脑科医院。
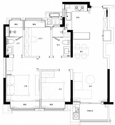
项目户型