东旅大厦

4006698586 106

点击收起
  • 效果图(1)

  • 交通图(1)

  • 实景图(1)

  • 样板间(9)

参考均价:59800元/㎡(单价) 263-665万(总价)
变价提醒
楼盘地址:
上海市浦东新区浦东南路1877号
地址发送到手机
开盘时间:
2007年10月01日
开盘提醒
交房时间:
预计2022年05月30日
主力面积:
200-1721㎡
余房查询
开发商:
上海爱家投资有限公司
更多详细信息>>
预售证号:

4006698586 转 106

扫码致电售楼处了解更多信息

楼盘详情
楼盘相册
户型图
楼盘动态
价值分析
周边楼盘
房贷计算器
会员福利
新房福利网
户型图
价值分析

项目概述

交通配套
地铁:距离地铁4号线塘桥站约700米,步行可达。3站到世纪大道站,可换乘2号线、6号线、9号线,快速通达上海市区各主要区域。此外,地铁19号线(规划中)将进一步提升区域交通便利性。
自驾:5分钟内可上内环高架,便捷连接浦东大道、杨高南路等主干道,快速抵达陆家嘴、外滩等核心商圈。
公交:周边有624、640、988、浦东89、1048等多条公交线路,覆盖周边商业区、居民区及交通枢纽。

生活配套
购物中心:新塘桥生活广场、巴黎春天、上海第一八佰伴、新大陆广场、华润时代广场、九六广场、陆家嘴1885广场、老佛爷百货等,满足日常购物、餐饮、娱乐需求。
特色街区:世纪大道沿线汇聚众多高端商业综合体,如BFC外滩金融中心、正大广场等,提供国际品牌购物、艺术展览、高端餐饮等多元体验。

教育配套
高中:上海市洋泾中学高中部,教学质量领先,注重学生综合素质培养。
中学:建平中学南校、上海市文建中学分校区、上海民办洋泾外国语学校,提供多样化课程体系。
小学:浦明师范学校附属小学、新舟中小学,注重基础教育与素质教育结合。
幼儿园:浦南幼儿园(浦电路)、新苗幼儿园(浦电路)、新加坡伊顿国际幼儿学校,提供国际化教育环境。

医疗配套
三甲医院:上海交通大学医学院附属仁济医院东院(1.9公里)、上海市东方医院(2.5公里),提供全面的医疗救治服务。
二甲医院:上海市浦东新区浦南医院(西院)(3公里),覆盖常见疾病诊疗及社区医疗服务。

项目户型

楼盘动态
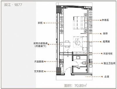
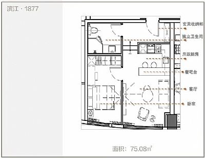
  • 主力户型与交付标准 户型面积:44㎡、70㎡、75㎡、115㎡四种主力户型,满足单身、小家庭及投资需求 层高:3.5 米,空间感良好 梯户比:3 梯 10 户 交付标准:精装修交付,配备智能化家居系统,拎包入住 装修亮点:超大落地窗设计,可欣赏陆家嘴 "三件套" 景观,轻奢装修风格
    楼盘动态 2026-1-18 19:27:07
公交 地铁 学校 医院 银行
房贷计算器
估算房价
万/套
首付比例
还款年限
贷款利率
+
BP
=
%
月供:-
首付:-万元
贷款:-万元
利息:-
您需要开具-元/月的收入证明
1. 此结果为等额本息的计算结果;
20%
首付比例
极力推荐的楼盘